情報更新日:2025年10月30日/広告有効期限:2025年11月30日
表示閲覧回数(過去30日間):8
お急ぎの方はお電話からお気軽にどうぞ!
022-722-4155 営業時間 / 09:30~18:00 定休日 / 日曜日・祝日
>物件詳細情報
| 基本情報 | |
|---|---|
| 物件番号 | 10007808622 |
| 店舗形態 | 事務所 |
| オススメ業種 | 事務所 |
| 物件名 | DK一番町ビルⅡ 3階 |
| 物件の状態 | 空き |
| 引越し時期 | 相談 |
| 契約形態と期間 |
定期契約期間:5年間再契約:不可 |
| 所在地・交通 | |
|---|---|
| 所在地 | 宮城県仙台市青葉区一番町2-7-10 |
| 交 通1 | 地下鉄東西線青葉通一番町駅 徒歩3分 |
| 交 通2 | - |
| 賃料 | |
|---|---|
| 賃 料 | 454,902円(税込) |
| 敷 金 |
6ヶ月 |
| その他 | |
|---|---|
| 備考 | ※保証会社利用要 初回保証料は月額賃料合計の100%※テナント保険加入要※ |
| 建物 | |
|---|---|
| 建物構造 | 鉄筋コンクリート造 |
| 建物階建て |
地上8階 |
| 施工年月 | 1984(昭和59)年 10月 |
| 募集物件の階数 | 地上 3階 |
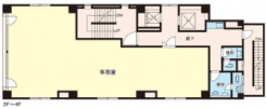
| 契約面積 | 136.71m2(41.35坪) |
| 用途地域 | 商業地域 |
| 設備 | |
|---|---|
| エレベータ | 有 |
| エアコン | 有 |
| トイレ | 有/共用 |
| キッチン | 無 |
| ネット環境 | 有 |
| 床仕様 | OAフロア |
| 利用時間 | 24時間 |
| 駐車場 | |
|---|---|
| 状 況 | 空有 |
| 駐車料金 | 27,500円(税込) |
| 取引情報 | |
|---|---|
| 取引態様 | 媒介 |
| 客付 | 不可 |
この物件をチェックした人はこんな物件も見ています
- 地下鉄泉中央駅から徒歩8分のオフィスビル。2011年築の建物です。

宮城県仙台市泉区七北田-字古内1-1
101.96m2(30.84坪)
305,316円(税込)
- ★ぶらんどーむ一番町商店街と広瀬通に面した好立地!

宮城県仙台市青葉区一番町3-10-17
228.83m2(69.22坪)
1,522,840円(税込)
- 国分町のメイン通り!キャバクラに最適で綺麗な内装!そのままでも営業できます!

宮城県仙台市青葉区国分町2-10-16
62.50m2(18.91坪)
330,000円(税込)
- ★事務所・店舗★24時間利用

宮城県仙台市青葉区一番町4-1-7
26.45m2(8.00坪)
139,000円(税込)
- ★事務所・店舗★24時間利用

宮城県仙台市青葉区一番町4-1-7
71.94m2(21.76坪)
135,000円(税込)
今日チェックした物件
お急ぎの方はお電話からお気軽にどうぞ!
022-722-4155 営業時間 / 09:30~18:00 定休日 / 日曜日・祝日


022-722-4155













022-722-4155