情報更新日:2025年10月25日/広告有効期限:2025年11月30日
表示閲覧回数(過去30日間):15
お急ぎの方はお電話からお気軽にどうぞ!
022-722-4155 営業時間 / 09:30~18:00 定休日 / 日曜日・祝日
>物件詳細情報
| 基本情報 | |
|---|---|
| 物件番号 | 10007805216 |
| 店舗形態 | 事務所 |
| オススメ業種 | 事務所 |
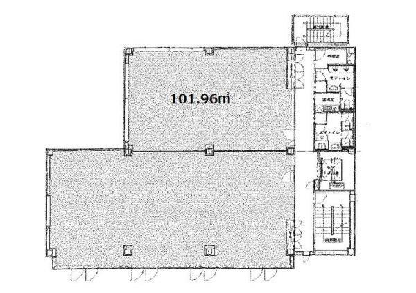
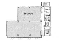
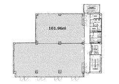
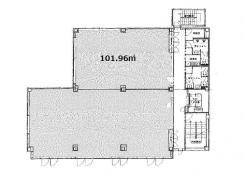
| 物件名 | APPLE泉 4階 |
| 物件の状態 | 空き |
| 引越し時期 | 相談 |
| 契約形態と期間 |
普通契約期間:3年間 |
| 所在地・交通 | |
|---|---|
| 所在地 | 宮城県仙台市泉区七北田-字古内1-1 |
| 交 通1 | 地下鉄南北線泉中央駅 徒歩8分 |
| 交 通2 | - |
| 賃料 | |
|---|---|
| 賃 料 | 305,316円(税込) |
| 敷 金 |
6ヶ月 |
| 共益費・管理費 | 30,532円(税込) |
| 礼 金 | 1ヶ月 |
| その他 | |
|---|---|
| 備考 | ※現況優先。※共有部分に男女別トイレあり※保険加入必須※24時間セキュリティ。 |
| 建物 | |
|---|---|
| 建物構造 | 鉄骨造 |
| 建物階建て |
地上5階 |
| 施工年月 | 2011(平成23)年 12月 |
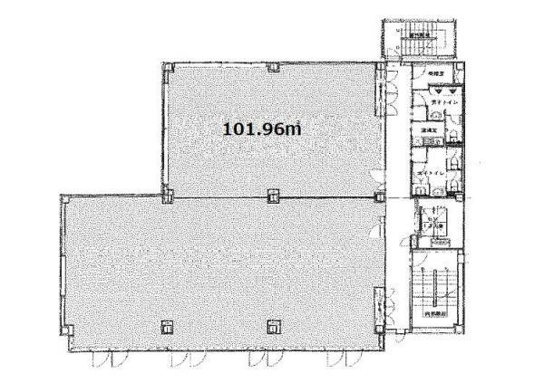
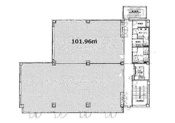
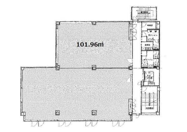
| 募集物件の階数 | 地上 4階 |
| 契約面積 | 101.96m2(30.84坪) |
| 設備 | |
|---|---|
| エアコン | 有 |
| トイレ | 有/共用 |
| 給湯室 | 有/共用 |
| 床仕様 | OAフロア |
| 駐車場 | |
|---|---|
| 状 況 | 近隣 |
| 駐車料金 | 11,000円(税込) |
| 取引情報 | |
|---|---|
| 取引態様 | 媒介 |
| 客付 | 不可 |
この物件をチェックした人はこんな物件も見ています
- 晩翠通に面した貸店舗・事務所!視認性良好!事務所にオススメ!

宮城県仙台市青葉区国分町2-3-13
71.36m2(21.59坪)
132,000円(税込)
- 地下鉄南北線勾当台公園駅まで徒歩6分のオフィスビルです。

宮城県仙台市青葉区国分町3-11-9
34.84m2(10.54坪)
81,158円(税込)
- 地下鉄南北線勾当台公園駅まで徒歩6分のオフィスビルです。

宮城県仙台市青葉区国分町3-11-9
34.84m2(10.54坪)
81,158円(税込)
- 官公庁や仙台法務局徒歩圏!建築・法律関係の個人事務所にオススメ!業種もご相談ください♪

宮城県仙台市青葉区国分町3-8-17
34.56m2(10.45坪)
62,000円(税込)
- 北仙台駅前!最上階ワンフロア貸し!

宮城県仙台市青葉区昭和町5-23
150.70m2(45.59坪)
319,000円(税込)
今日チェックした物件
お急ぎの方はお電話からお気軽にどうぞ!
022-722-4155 営業時間 / 09:30~18:00 定休日 / 日曜日・祝日


022-722-4155













022-722-4155