情報更新日:2026年03月03日/広告有効期限:2026年04月10日
表示閲覧回数(過去30日間):51
お急ぎの方はお電話からお気軽にどうぞ!
022-722-4155 営業時間 / 09:30~18:00 定休日 / 日曜日・祝日
>物件詳細情報
| 基本情報 | |
|---|---|
| 物件番号 | 10007808370 |
| 店舗形態 | 店舗, 事務所, 店舗(飲食店可) |
| オススメ業種 | 重飲食, 軽飲食, 美容関係, アミューズメント |
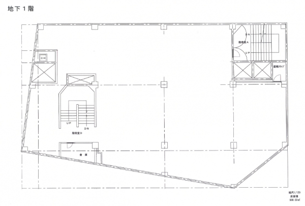
| 物件名 | 新東北ビル 地下1階 |
| 物件の状態 | 空き |
| 引越し時期 | 相談 |
| 契約形態と期間 |
定期契約期間:5年間再契約:可 |
| 所在地・交通 | |
|---|---|
| 所在地 | 宮城県仙台市青葉区中央(次のビルを除く)1-9-1 |
| 交 通1 | 地下鉄南北線仙台駅 徒歩1分 |
| 交 通2 | 東北線仙台駅 徒歩1分 |
| 賃料 | |
|---|---|
| 賃 料 | 4,400,000円(税込) |
| 敷 金 |
10ヶ月 |
| 共益費・管理費 | 463,540円(税込) |
| 礼 金 | 1ヶ月 |
| その他 | |
|---|---|
| 備考 | ※保証会社加入要 初回保証料は月額賃料等の合計50% 更新時 月額賃料等の20%/年※専用倉庫あり※懸垂幕:192,500円(税込)/月額(1か所、ペデストリアンデッキ側※袖看板:192,500円(税込)/月額※管理人常駐24時間※用途変更はテナント側※排煙関係は自然排煙など要相談※ビル出入口シャッター(開閉時間要相談、営業時間は24時撤収)※冷暖房は各階、既存のものを利用可。建物設備ではない為、故障などの場合の修理費用はテナント負担となります。予めご了承ください。※諸条件については応相談※現況優先 |
| 建物 | |
|---|---|
| 建物構造 | 鉄骨鉄筋コンクリート造 |
| 建物階建て |
地上11階 地下2階 |
| 施工年月 | 1967(昭和42)年 04月 |
| 募集物件の階数 | 地下 1階 |
| 契約面積 | 500.03m2(151.26坪) |
| 用途地域 | 商業地域 |
| 設備 | |
|---|---|
| 水道 | 公営 |
| 下水道 | 公共下水 |
| エレベータ | 有/2基 |
| エアコン | 無 |
| トイレ | 無 |
| 給湯室 | 無 |
| キッチン | 無 |
| ネット環境 | 無 |
| 床仕様 | スケルトン |
| セキュリティ | 無 |
| 利用時間 | 時間制限有 |
| シャッター | 無 |
| 照明設備 | 無 |
| 内装業者指定 | 有 |
| 駐車場 | |
|---|---|
| 状 況 | 無し |
| 取引情報 | |
|---|---|
| 取引態様 | 専任 |
| 客付 | 可 |
この物件をチェックした人はこんな物件も見ています
- 晩翠通に面した貸店舗・事務所!視認性良好!事務所にオススメ!

宮城県仙台市青葉区国分町2-3-13
71.36m2(21.59坪)
132,000円(税込)
- 地下鉄北四番丁駅徒歩4分の立地

宮城県仙台市青葉区上杉1-16-30
62m2(18.76坪)
143,000円(税込)
- 仙台駅西口で数少ないペデストリアンデッキ直結のテナント募集!※平成24年7月耐震改修工事完了

宮城県仙台市青葉区中央(次のビルを除く)1-9-1
497.36m2(150.45坪)
4,400,000円(税込)
- 青葉通り沿いの路面店です♪

宮城県仙台市青葉区大町2-3-5
227.31m2(68.76坪)
880,000円(税込)
- 【大規模リノベーション】青葉通一番町駅から徒歩3分「マーブルロードおおまち」アーケード内の建物!

宮城県仙台市青葉区一番町3-6-10
149.22m2(45.14坪)
1,092,146円(税込)
今日チェックした物件
お急ぎの方はお電話からお気軽にどうぞ!
022-722-4155 営業時間 / 09:30~18:00 定休日 / 日曜日・祝日


022-722-4155














022-722-4155