情報更新日:2026年03月24日/広告有効期限:2026年05月10日
表示閲覧回数(過去30日間):115
お急ぎの方はお電話からお気軽にどうぞ!
022-722-4155 営業時間 / 09:30~18:00 定休日 / 日曜日・祝日
>物件詳細情報
| 基本情報 | |
|---|---|
| 物件番号 | 10007808657 |
| 店舗形態 | 店舗 |
| オススメ業種 | 物販関係, 塾・学校・教育関係, 重飲食 |
| 物件名 | 大町2丁目テナント 1階 |
| 物件の状態 | 入居中 |
| 引越し時期 | 2026(令和8)年05月上旬 |
| 契約形態と期間 |
普通契約期間:3年間 |
| 所在地・交通 | |
|---|---|
| 所在地 | 宮城県仙台市青葉区大町2-3-5 |
| 交 通1 | 地下鉄東西線大町西公園駅 徒歩2分 |
| 交 通2 | - |
| 賃料 | |
|---|---|
| 賃 料 | 880,000円(税込) |
| 敷 金 |
6ヶ月 |
| 共益費・管理費 | 127,655円(税込) |
| 礼 金 | 1ヶ月 |
| その他 | |
|---|---|
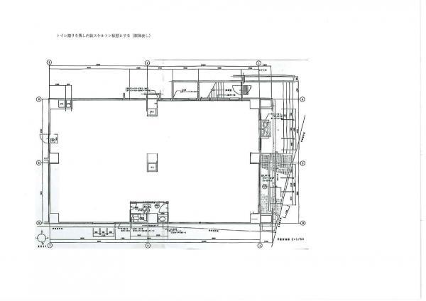
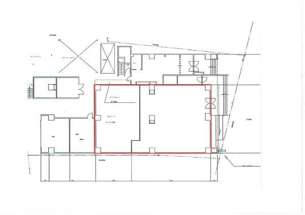
| 備考 | ※現況優先※ペット関連業種は不可となります。※1年間中途解約不可※テナント保険加入要※トイレ・洗面台を残し、その他はスケルトンでの引渡し※現況優先 |
| 建物 | |
|---|---|
| 建物構造 | 鉄筋コンクリート造 |
| 建物階建て |
地上11階 |
| 施工年月 | 1983(昭和58)年 03月 |
| 募集物件の階数 | 地上 1階 |
| 契約面積 | 227.31m2(68.76坪) |
| 用途地域 | 商業地域 |
| 設備 | |
|---|---|
| 水道 | 公営 |
| 下水道 | 公共下水 |
| エレベータ | 無 |
| エアコン | 無 |
| トイレ | 有/専用 |
| 給湯室 | 無 |
| キッチン | 無 |
| 床仕様 | スケルトン |
| セキュリティ | 無 |
| 利用時間 | 24時間 |
| 照明設備 | 無 |
| 駐車場 | |
|---|---|
| 状 況 | 無し |
| 取引情報 | |
|---|---|
| 取引態様 | 媒介 |
| 客付 | 不可 |
この物件をチェックした人はこんな物件も見ています
- 晩翠通に面した貸店舗・事務所!視認性良好!事務所にオススメ!

宮城県仙台市青葉区国分町2-3-13
71.36m2(21.59坪)
132,000円(税込)
- 地下鉄北四番丁駅徒歩4分の立地

宮城県仙台市青葉区上杉1-16-30
62m2(18.76坪)
143,000円(税込)
- 仙台駅西口で数少ないペデストリアンデッキ直結のテナント募集!※平成24年7月耐震改修工事完了

宮城県仙台市青葉区中央(次のビルを除く)1-9-1
497.36m2(150.45坪)
4,400,000円(税込)
- 賃貸マンション1階の路面店!業種業態は、お気軽にご相談ください!

宮城県仙台市若林区荒井3-14-4
88m2(26.62坪)
275,000円(税込)
- 地下鉄南北線 勾当台公園駅まで徒歩12分。

宮城県仙台市青葉区春日町9-15
49.40m2(14.94坪)
110,000円(税込)
今日チェックした物件
お急ぎの方はお電話からお気軽にどうぞ!
022-722-4155 営業時間 / 09:30~18:00 定休日 / 日曜日・祝日


022-722-4155















022-722-4155