情報更新日:2025年10月27日/広告有効期限:2025年11月30日
表示閲覧回数(過去30日間):4
お急ぎの方はお電話からお気軽にどうぞ!
022-722-4155 営業時間 / 09:30~18:00 定休日 / 日曜日・祝日
>物件詳細情報
| 基本情報 | |
|---|---|
| 物件番号 | 10007807299 |
| 店舗形態 | 事務所 |
| オススメ業種 | 事務所 |
| 物件名 | 仙台一番町ビル 11階 |
| 物件の状態 | 空き |
| 引越し時期 | 即 |
| 契約形態と期間 |
普通契約期間:3年間 |
| 所在地・交通 | |
|---|---|
| 所在地 | 宮城県仙台市青葉区一番町2-10-17 |
| 交 通1 | 地下鉄東西線青葉通一番町駅 徒歩5分 |
| 交 通2 | 地下鉄南北線広瀬通駅 徒歩12分 |
| 賃料 | |
|---|---|
| 賃 料 | 237,930円(税込) |
| 敷 金 |
6ヶ月 |
| その他 | |
|---|---|
| 備考 | ※保証会社 要加入※初回保証料は月額賃料合計の100%※テナント保険加入要※現況優先 |
| 建物 | |
|---|---|
| 建物構造 | 鉄骨鉄筋コンクリート造 |
| 建物階建て |
地上11階 |
| 施工年月 | 1993(平成5)年 04月 |
| 募集物件の階数 | 地上 11階 |
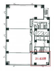
| 契約面積 | 71.51m2(21.63坪) |
| 用途地域 | 商業地域 |
| 設備 | |
|---|---|
| 水道 | 公営 |
| 下水道 | 公共下水 |
| エレベータ | 有/3基以上 |
| エアコン | 有 |
| トイレ | 有/共用 |
| 給湯室 | 有/共用 |
| キッチン | 無 |
| ネット環境 | 無 |
| セキュリティ | 機械警備 |
| 利用時間 | 24時間 |
| シャッター | 無 |
| 照明設備 | 有 |
| 内装業者指定 | 無 |
| 駐車場 | |
|---|---|
| 状 況 | 空有 |
| 駐車料金 | 38,500円(税込) |
| 取引情報 | |
|---|---|
| 取引態様 | 媒介 |
| 客付 | 不可 |
この物件をチェックした人はこんな物件も見ています
- 仙台駅近くの事務所です!

宮城県仙台市青葉区花京院1-1-5
47.53m2(14.38坪)
158,180円(税込)
- 高等裁判所前のオフィスビル!

宮城県仙台市青葉区一番町2-10-17
71.51m2(21.63坪)
237,930円(税込)
- 高等裁判所前のオフィスビル!

宮城県仙台市青葉区一番町2-10-17
150.18m2(45.43坪)
499,730円(税込)
- 広瀬通沿いの2階貸事務所!交差点角の立地で視認性抜群!

宮城県仙台市青葉区大町2-10-14
53.39m2(16.15坪)
158,873円(税込)
- ★荒町商店街★視認性もよく店舗に最適!

宮城県仙台市若林区荒町-75
95.34m2(28.84坪)
215,600円(税込)
今日チェックした物件
お急ぎの方はお電話からお気軽にどうぞ!
022-722-4155 営業時間 / 09:30~18:00 定休日 / 日曜日・祝日


022-722-4155
















022-722-4155