情報更新日:2025年12月13日/広告有効期限:2026年01月31日
表示閲覧回数(過去30日間):5
お急ぎの方はお電話からお気軽にどうぞ!
022-722-4155 営業時間 / 09:30~18:00 定休日 / 日曜日・祝日
>物件詳細情報
| 基本情報 | |
|---|---|
| 物件番号 | 10007805412 |
| 店舗形態 | 事務所 |
| オススメ業種 | 事務所 |
| 物件名 | マルチプライ扇町3丁目ビル 3階 |
| 物件の状態 | 空き |
| 引越し時期 | 相談 |
| 契約形態と期間 |
普通契約期間:3年間 |
| 所在地・交通 | |
|---|---|
| 所在地 | 宮城県仙台市宮城野区扇町3-4-23 |
| 交 通1 | 仙石線小鶴新田駅 徒歩23分 |
| 交 通2 | - |
| 賃料 | |
|---|---|
| 賃 料 | 153,010円(税込) |
| 敷 金 |
2ヶ月 |
| 礼 金 | 1ヶ月 |
| その他 | |
|---|---|
| 備考 | ※オフィス利用限定※家賃保証会社加入要 初回保証料は賃料合計100%※テナント保険要加入※全館禁煙(喫煙スペースあり) ※貸会議室有り※多目的室の賃貸有り ※省エネ高効率エアコン※複層ガラス |
| 建物 | |
|---|---|
| 建物構造 | 鉄筋コンクリート造 |
| 建物階建て |
地上3階 |
| 施工年月 | 1989(平成元年)年 11月 |
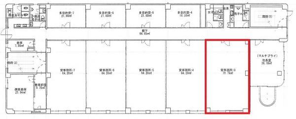
| 募集物件の階数 | 地上 3階 301号室 |
| 契約面積 | 70.75m2(21.40坪) |
| 用途地域 | 工業専用 |
| 設備 | |
|---|---|
| エレベータ | 無 |
| エアコン | 有り/個別 |
| トイレ | 有/共用 |
| 給湯室 | 有/共用 |
| キッチン | 無 |
| ネット環境 | 無 |
| セキュリティ | 機械警備 |
| 利用時間 | 24時間 |
| シャッター | 無 |
| 照明設備 | 有 |
| 内装業者指定 | 無 |
| 駐車場 | |
|---|---|
| 状 況 | 空有 |
| 駐車料金 | 7,700円(税込) |
| 取引情報 | |
|---|---|
| 取引態様 | 媒介 |
| 客付 | 不可 |
この物件をチェックした人はこんな物件も見ています
- 晩翠通に面した貸店舗・事務所!視認性良好!事務所にオススメ!

宮城県仙台市青葉区国分町2-3-13
71.36m2(21.59坪)
132,000円(税込)
- 官公庁や仙台法務局徒歩圏!建築・法律関係の個人事務所にオススメ!業種もご相談ください♪

宮城県仙台市青葉区国分町3-8-17
34.56m2(10.45坪)
62,000円(税込)
- 地下鉄南北線勾当台公園駅まで徒歩6分のオフィスビルです。

宮城県仙台市青葉区国分町3-11-9
34.84m2(10.54坪)
81,158円(税込)
- 地下鉄南北線勾当台公園駅まで徒歩6分のオフィスビルです。

宮城県仙台市青葉区国分町3-11-9
34.84m2(10.54坪)
81,158円(税込)
- 地下鉄北四番丁駅徒歩4分の立地

宮城県仙台市青葉区上杉1-16-30
62m2(18.76坪)
143,000円(税込)
今日チェックした物件
お急ぎの方はお電話からお気軽にどうぞ!
022-722-4155 営業時間 / 09:30~18:00 定休日 / 日曜日・祝日


022-722-4155

















022-722-4155