情報更新日:2025年11月29日/広告有効期限:2026年01月10日
表示閲覧回数(過去30日間):19
お急ぎの方はお電話からお気軽にどうぞ!
022-722-4155 営業時間 / 09:30~18:00 定休日 / 日曜日・祝日
>物件詳細情報
| 基本情報 | |
|---|---|
| 物件番号 | 10007808621 |
| 店舗形態 | 事務所 |
| オススメ業種 | 事務所 |
| 物件名 | DK一番町ビルⅡ 2階 |
| 物件の状態 | 空き |
| 引越し時期 | 相談 |
| 契約形態と期間 |
定期契約期間:5年間再契約:不可 |
| 所在地・交通 | |
|---|---|
| 所在地 | 宮城県仙台市青葉区一番町2-7-10 |
| 交 通1 | 地下鉄東西線青葉通一番町駅 徒歩3分 |
| 交 通2 | - |
| 賃料 | |
|---|---|
| 賃 料 | 454,902円(税込) |
| 敷 金 |
6ヶ月 |
| その他 | |
|---|---|
| 備考 | ※保証会社利用要 初回保証料は月額賃料合計の100%※テナント保険加入要※ |
| 建物 | |
|---|---|
| 建物構造 | 鉄筋コンクリート造 |
| 建物階建て |
地上8階 |
| 施工年月 | 1984(昭和59)年 10月 |
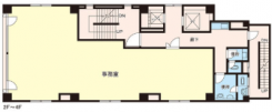
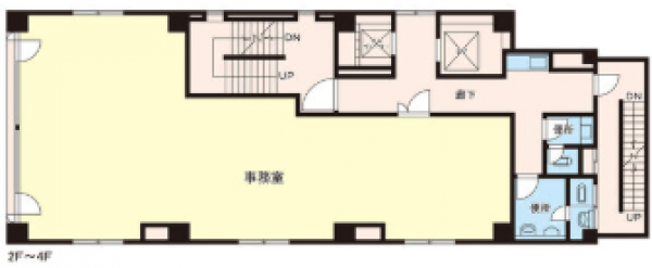
| 募集物件の階数 | 地上 2階 |
| 契約面積 | 136.71m2(41.35坪) |
| 用途地域 | 商業地域 |
| 設備 | |
|---|---|
| エレベータ | 有 |
| エアコン | 有 |
| トイレ | 有/共用 |
| キッチン | 無 |
| ネット環境 | 有 |
| 床仕様 | OAフロア |
| 利用時間 | 24時間 |
| 駐車場 | |
|---|---|
| 状 況 | 空有 |
| 駐車料金 | 27,500円(税込) |
| 取引情報 | |
|---|---|
| 取引態様 | 媒介 |
| 客付 | 不可 |
この物件をチェックした人はこんな物件も見ています
- 晩翠通に面した貸店舗・事務所!視認性良好!事務所にオススメ!

宮城県仙台市青葉区国分町2-3-13
71.36m2(21.59坪)
132,000円(税込)
- 地下鉄南北線勾当台公園駅まで徒歩6分のオフィスビルです。

宮城県仙台市青葉区国分町3-11-9
34.84m2(10.54坪)
81,158円(税込)
- 地下鉄南北線勾当台公園駅まで徒歩6分のオフィスビルです。

宮城県仙台市青葉区国分町3-11-9
34.84m2(10.54坪)
81,158円(税込)
- 地下鉄北四番丁駅徒歩4分の立地

宮城県仙台市青葉区上杉1-16-30
62m2(18.76坪)
143,000円(税込)
- 仙台駅西口で数少ないペデストリアンデッキ直結のテナント募集!※平成24年7月耐震改修工事完了

宮城県仙台市青葉区中央(次のビルを除く)1-9-1
497.36m2(150.45坪)
4,400,000円(税込)
今日チェックした物件
お急ぎの方はお電話からお気軽にどうぞ!
022-722-4155 営業時間 / 09:30~18:00 定休日 / 日曜日・祝日


022-722-4155













022-722-4155