情報更新日:2025年11月29日/広告有効期限:2026年01月10日
表示閲覧回数(過去30日間):14
お急ぎの方はお電話からお気軽にどうぞ!
022-722-4155 営業時間 / 09:30~18:00 定休日 / 日曜日・祝日
>物件詳細情報
| 基本情報 | |
|---|---|
| 物件番号 | 10007808559 |
| 店舗形態 | 事務所 |
| オススメ業種 | 事務所 |
| 物件名 | FOGLIA SHIBASAKI BLDG. 4階402号室 |
| 物件の状態 | 空き |
| 引越し時期 | 即 |
| 契約形態と期間 |
普通契約期間:2年間 |
| 所在地・交通 | |
|---|---|
| 所在地 | 宮城県仙台市青葉区国分町2-2-5 |
| 交 通1 | 地下鉄東西線青葉通一番町駅 徒歩7分 |
| 交 通2 | 地下鉄南北線広瀬通駅 徒歩8分 |
| 賃料 | |
|---|---|
| 賃 料 | 307,824円(税込) |
| 敷 金 |
3ヶ月 |
| その他 | |
|---|---|
| 備考 | ※開館時間 全日6:00~23:00※保証会社加入要 初回保証料は月額固定費合計の90% 更新時10%/年※火災保険加入要※電気代 検針実費※水道代 8,395円/月※鍵交換代27,500円※現況優先 |
| 建物 | |
|---|---|
| 建物構造 | 鉄骨鉄筋コンクリート造 |
| 建物階建て |
地上8階 地下1階 |
| 施工年月 | 1984(昭和59)年 11月 |
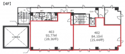
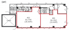
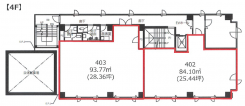
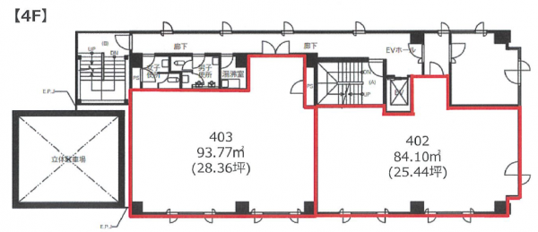
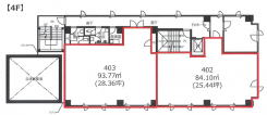
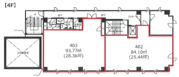
| 募集物件の階数 | 地上 4階 402号室 |
| 契約面積 | 84.10m2(25.44坪) |
| 用途地域 | 商業地域 |
| 設備 | |
|---|---|
| 水道 | 公営 |
| 下水道 | 公共下水 |
| エレベータ | 有 |
| エアコン | 有 |
| トイレ | 有/共用 |
| 給湯室 | 有/共用 |
| キッチン | 無 |
| セキュリティ | 機械警備 |
| 利用時間 | 時間制限有 |
| 駐車場 | |
|---|---|
| 状 況 | 空有 |
| 駐車料金 | 25,300円(税込) |
| 敷 金 | 1ヶ月 |
| 取引情報 | |
|---|---|
| 取引態様 | 媒介 |
| 客付 | 不可 |
この物件をチェックした人はこんな物件も見ています
- 晩翠通に面した貸店舗・事務所!視認性良好!事務所にオススメ!

宮城県仙台市青葉区国分町2-3-13
71.36m2(21.59坪)
132,000円(税込)
- 地下鉄南北線勾当台公園駅まで徒歩6分のオフィスビルです。

宮城県仙台市青葉区国分町3-11-9
34.84m2(10.54坪)
81,158円(税込)
- 地下鉄南北線勾当台公園駅まで徒歩6分のオフィスビルです。

宮城県仙台市青葉区国分町3-11-9
34.84m2(10.54坪)
81,158円(税込)
- 地下鉄北四番丁駅徒歩4分の立地

宮城県仙台市青葉区上杉1-16-30
62m2(18.76坪)
143,000円(税込)
- 仙台駅西口で数少ないペデストリアンデッキ直結のテナント募集!※平成24年7月耐震改修工事完了

宮城県仙台市青葉区中央(次のビルを除く)1-9-1
497.36m2(150.45坪)
4,400,000円(税込)
今日チェックした物件
お急ぎの方はお電話からお気軽にどうぞ!
022-722-4155 営業時間 / 09:30~18:00 定休日 / 日曜日・祝日


022-722-4155
















022-722-4155