情報更新日:2025年11月29日/広告有効期限:2026年01月10日
表示閲覧回数(過去30日間):79
お急ぎの方はお電話からお気軽にどうぞ!
022-722-4155 営業時間 / 09:30~18:00 定休日 / 日曜日・祝日
>物件詳細情報
| 基本情報 | |
|---|---|
| 物件番号 | 10007808424 |
| 店舗形態 | 店舗(飲食店可), 事務所 |
| オススメ業種 | 軽飲食, 物販関係, 美容関係 |
| 物件名 | グランゼリア 2階D号 |
| 物件の状態 | 空き |
| 引越し時期 | 相談 |
| 契約形態と期間 |
普通契約期間:2年間16,500円 |
| 所在地・交通 | |
|---|---|
| 所在地 | 宮城県仙台市宮城野区宮城野1-1-17 |
| 交 通1 | 仙石線榴ヶ岡駅 徒歩4分 |
| 交 通2 | 東北線仙台駅 徒歩13分 |
| 賃料 | |
|---|---|
| 賃 料 | 220,000円(税込) |
| 敷 金 |
2ヶ月 |
| 共益費・管理費 | 11,000円(税込) |
| その他 | |
|---|---|
| 備考 | ※家賃保証会社加入要 初回保証料は月額賃料合計の100%※テナント保険加入要※1年以内に解約の場合賃料1ヶ月分の違約金あり※現況優先 |
| 建物 | |
|---|---|
| 建物構造 | 鉄筋コンクリート造 |
| 建物階建て |
地上5階 |
| 施工年月 | 2024(令和6)年 07月 |
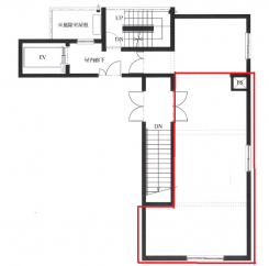
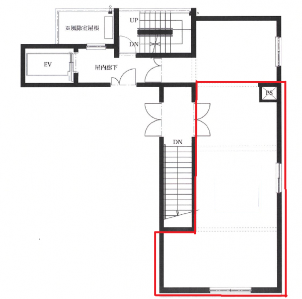
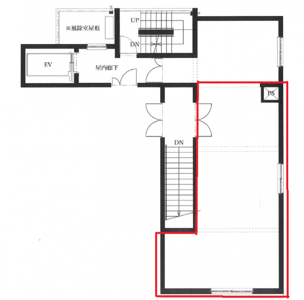
| 募集物件の階数 | 地上 2階 D号室 |
| 契約面積 | 66.55m2(20.13坪) |
| 用途地域 | 近商地域 |
| 設備 | |
|---|---|
| 水道 | 公営 |
| 下水道 | 公共下水 |
| ガス | 都市ガス |
| エレベータ | 有 |
| エアコン | 有 |
| トイレ | 無 |
| 給湯室 | 無 |
| キッチン | 無 |
| 床仕様 | スケルトン |
| 利用時間 | 時間制限有 |
| シャッター | 無 |
| 照明設備 | 無 |
| 駐車場 | |
|---|---|
| 状 況 | 無し |
| 取引情報 | |
|---|---|
| 取引態様 | 媒介 |
| 客付 | 不可 |
この物件をチェックした人はこんな物件も見ています
- 晩翠通に面した貸店舗・事務所!視認性良好!事務所にオススメ!

宮城県仙台市青葉区国分町2-3-13
71.36m2(21.59坪)
132,000円(税込)
- 地下鉄南北線勾当台公園駅まで徒歩6分のオフィスビルです。

宮城県仙台市青葉区国分町3-11-9
34.84m2(10.54坪)
81,158円(税込)
- 地下鉄南北線勾当台公園駅まで徒歩6分のオフィスビルです。

宮城県仙台市青葉区国分町3-11-9
34.84m2(10.54坪)
81,158円(税込)
- 地下鉄北四番丁駅徒歩4分の立地

宮城県仙台市青葉区上杉1-16-30
62m2(18.76坪)
143,000円(税込)
- 官公庁や仙台法務局徒歩圏!建築・法律関係の個人事務所にオススメ!業種もご相談ください♪

宮城県仙台市青葉区国分町3-8-17
34.56m2(10.45坪)
62,000円(税込)
今日チェックした物件
お急ぎの方はお電話からお気軽にどうぞ!
022-722-4155 営業時間 / 09:30~18:00 定休日 / 日曜日・祝日


022-722-4155














022-722-4155