情報更新日:2025年10月30日/広告有効期限:2025年11月30日
表示閲覧回数(過去30日間):16
お急ぎの方はお電話からお気軽にどうぞ!
022-722-4155 営業時間 / 09:30~18:00 定休日 / 日曜日・祝日
>物件詳細情報
| 基本情報 | |
|---|---|
| 物件番号 | 10007806950 |
| 店舗形態 | 事務所 |
| オススメ業種 | 事務所 |
| 物件名 | GMビルディング 4階 |
| 物件の状態 | 空き |
| 引越し時期 | 相談 |
| 契約形態と期間 |
普通契約期間:2年間 |
| 所在地・交通 | |
|---|---|
| 所在地 | 宮城県仙台市青葉区本町1-12-12 |
| 交 通1 | 東北線仙台駅 徒歩8分 |
| 交 通2 | 地下鉄南北線勾当台公園駅 徒歩8分 |
| 賃料 | |
|---|---|
| 賃 料 | 505,000円(税込) |
| 敷 金 |
6ヶ月 |
| その他 | |
|---|---|
| 備考 | ※喫煙スペースあり※リフレッシュルームあり※テナント保険要加入※保証会社利用の場合あり※1Fにコンビニ入居※地下1Fは飲食店街※現況優先 |
| 建物 | |
|---|---|
| 建物構造 | 鉄骨鉄筋コンクリート造 |
| 建物階建て |
地上9階 地下1階 |
| 施工年月 | 1974(昭和49)年 09月 |
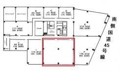
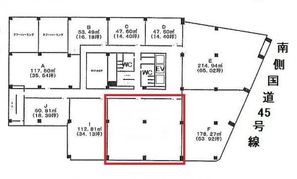
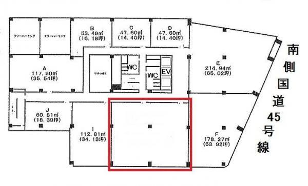
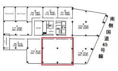
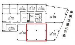
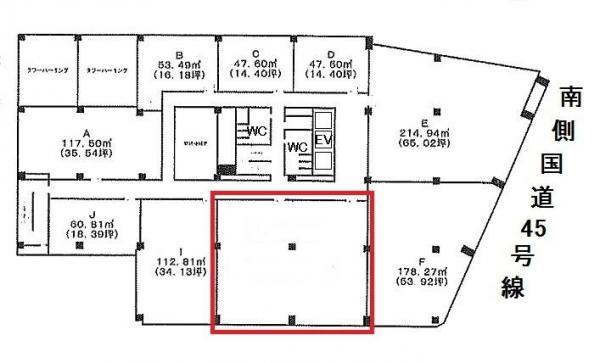
| 募集物件の階数 | 地上 4階 GH号室 |
| 契約面積 | 216.79m2(65.58坪) |
| 用途地域 | 商業地域 |
| 設備 | |
|---|---|
| エレベータ | 有/3基以上 |
| エアコン | 有り/個別 |
| トイレ | 有/共用 |
| 給湯室 | 有/共用 |
| キッチン | 無 |
| ネット環境 | 無 |
| セキュリティ | 機械警備 |
| 利用時間 | 24時間 |
| シャッター | 無 |
| 照明設備 | 有 |
| 内装業者指定 | 無 |
| 駐車場 | |
|---|---|
| 状 況 | 空有 |
| 駐車料金 | 33,000円(税込) |
| 取引情報 | |
|---|---|
| 取引態様 | 媒介 |
| 客付 | 不可 |
この物件をチェックした人はこんな物件も見ています
- 晩翠通に面した貸店舗・事務所!視認性良好!事務所にオススメ!

宮城県仙台市青葉区国分町2-3-13
71.36m2(21.59坪)
132,000円(税込)
- 北仙台駅前!最上階ワンフロア貸し!

宮城県仙台市青葉区昭和町5-23
150.70m2(45.59坪)
319,000円(税込)
- 仙台駅徒歩圏内!周辺に郵便局・コンビニがある便利な立地!ビジネスの拠点にオススメ!

宮城県仙台市青葉区本町1-12-12
216.79m2(65.58坪)
505,000円(税込)
- 人気の長町エリア!地下鉄南北線「長町」駅より徒歩1分の立地!たいはっくる1階貸店舗!

宮城県仙台市太白区長町5-3-1
152.79m2(46.22坪)
350,000円(税込)
- 仙台駅とぺディストリアンデッキで直結しているビル!事務所におすすめ!

宮城県仙台市青葉区中央(次のビルを除く)1-10-1
134.78m2(40.77坪)
賃料未定
今日チェックした物件
お急ぎの方はお電話からお気軽にどうぞ!
022-722-4155 営業時間 / 09:30~18:00 定休日 / 日曜日・祝日


022-722-4155















022-722-4155